1
2
3
4
5
6

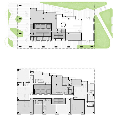
These two buildings, for a site near the Atlantic Avenue entrance to Brooklyn Bridge Park, use a stepped form to create terraces and bay windows for a mix of market rate and affordable apartments. The same strategy allows the buildings to open up public space at the ground level, while preserving views of the harbor, sky, and park. 




The ground floor is heavily programmed with public amenities that serve the community and park goers. Tenant amenities are pulled above the ground level and spread vertically through the buildings.




A seasonal plaza provides ice skating in the winter and space for a farmers market in the warm months.





***

Client: Brooklyn Bridge Park Development Corporation

Location: Brooklyn, NY

Program: Housing, Affordable Housing, Public Facilities

Size: 400,000 sf

Structural Engineering: Gace

Systems Engineering: WSP

Proposed June 15th, 2014

Proposal developed with SBN and WXY